Salta al contenuto
  • Home
  • Immobili in affitto
  • immobili in vendita
  • Chi siamo
  • contatti
  • English
  • Italiano
Menu Chiudi
Cerca nel sito web
CASENTINOINTUSCANY

Dove i tuoi sogni prendono casa.

+24 Foto

V-309-P VILLA IMMERSA NEL VERDE CON TERRENO E GARAGE

Pratovecchio Stia (Frazione Pratovecchio)
€ 450.000 - Trattabile
Caratteristiche principali
Rif: V-309-P
Contratto: Vendita
Tipologia: Villa
Zona: COLLINE
Camere: 6
Posti letto: 12
Bagni: 3
Locali: 11.0
Superficie: 380 mq
Posto auto: Posto auto
Livelli: 3
Descrizione

Nel cuore verde del Parco delle Foreste Casentinesi, lontano dallo smog, immersi in luoghi tranquilli, proponiamo una bellissima struttura dal carattere signorile, con podere circostante.

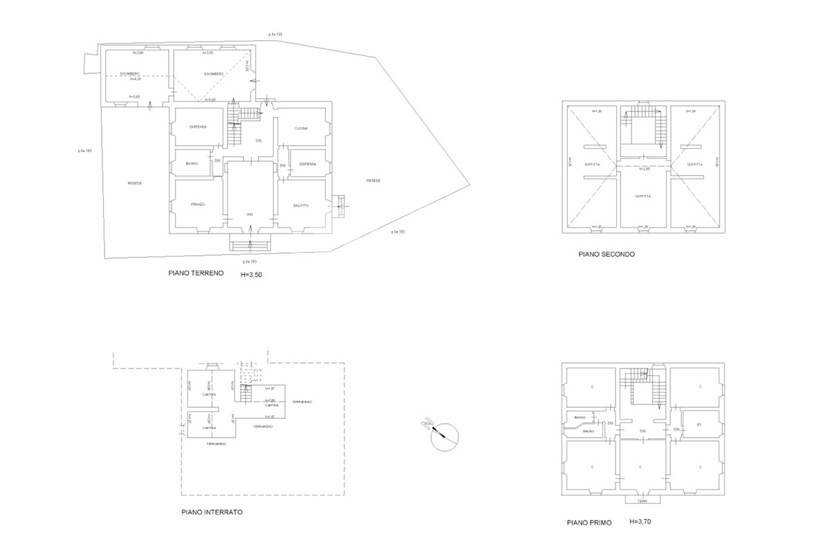
L'immobile a base quadrata si sviluppa su più livelli dal seminterrato al piano secondo.

Al piano terreno ampio ingresso centrale che apre l'accesso da un lato al soggiorno e cucina con dispensa, dall'altro al salone , bagno e studio.

Al piano primo troviamo cinque camere. lo studio,  due bagni, ogni piano copre una superficie di circa 120 mq calpestabile.

Al piano superiore nel sottotetto c'è sufficiente altezza per sfruttare il locale soffitta, con tetto a capanna , muri in pietra e pavimentazione in mattoni rossi, questo magnifico ambiente aspetta solo di essere rinnovato e valorizzato.

Al piano seminterrato si può accedere sia dall'interno dell'abitazione sia dai locali accessori esterni. Si trovano tre locali cantine comunicanti e accessibili .

A completamento della proprietà in vendita  due ulteriori locali accessori come garage (mq 40) e vecchie stalle da adibire a locale di sgombro o come ulteriore volume accessorio (60 mq ) oltre a un terreno prevalentemente boschivo (circa 3.5 ettari).

L'immobile necessita di ristrutturazione .

Efficienza energetica
 
 
 
 
 
 
G
Stato: Da Ristrutturare
Riscaldamento: Assente
Dettagli aggiuntivi
Cucina: Abitabile
Giardino: Privato
Ingresso: Indipendente
Arredamento: Non arredato
Lati liberi: Quattro
Esposizione: Esterna
Distanze
Centro: 1.0 km
Planimetrie
Foto 360
Immobili simili
Rif: V-305-S
Vendita
foto immobile rif V-305-S

V-305-S VILLA IN CENTRO CON GIARDINO

Pratovecchio Stia | Pratovecchio

€ 345.000

Interessante Immobile Storico a pianta quadrata, risalente all'Ottavo secolo, che ha subito una ristrutturazione al piano terreno all'inizio degli anni '90. Questa proprietà versatile offre la possibilità di essere utilizzata come villa indipendente o come tre appartamenti con accessi separati, rendendola ideale per famiglie numerose o per vari scopi di investimento immobiliare.L'ampio appartamento al piano terra, di circa 155 mq, è caratterizzato da un luminoso soggiorno e dispone di un accesso diretto sia dal portone principale che da una porta-finestra laterale. Il giardino, accessibile e ben suddiviso, garantisce privacy e relax. La cucina abitabile è dotata di una comoda dispensa-ripostiglio, mentre il reparto notte offre tre spaziose camere matrimoniali e due bagni.Al primo pi...

  • 298 mq
  • 5 Camere
  • 3 Bagni
Vedi dettagli scheda immobile
Rif: V-305bis-P
Vendita
foto immobile rif V-305bis-P

V-305bis-P APPARTAMENTO PIANO TERRA IN CENTRO CON GIARDINO

Pratovecchio Stia | Pratovecchio

€ 200.000

Scopri un affascinante immobile storico a pianta quadrata, risalente all'Ottavo secolo, che unisce eleganza e comfort moderno. Questa porzione di villa offre un accesso pedonale e carrabile indipendente, garantendo privacy e comodità. L'ampio appartamento al piano terra, di circa 155 mq, si distingue per il luminoso soggiorno, si caratterizza per ampi spazi interni  .Il giardino privato è un angolo di pace dove godere di tranquillità e bellezza naturale pur essendo in pieno centro. Con accesso diretto dal portone principale e dalla porta-finestra laterale, l'appartamento si apre su spazi ampi secondo una ridistribuzione degli ambienti revisionata  negli anni '90 con materiali di ottima qualità come pietra e parquet .Troviamo una cucina abitabile con dispensa-ripostiglio, t...

  • 170 mq
  • 3 Camere
  • 2 Bagni
Vedi dettagli scheda immobile
Rif: V249 - S
Vendita
foto immobile rif V249 - S

V249 - S VILLA SINGOLA CON PARCO , GARAGE E POSIZIONE PANORAMICA

Pratovecchio Stia | Stia

€ 200.000

In una posizione panoramica , questa splendida proprietà residenziale offre una zona tranquilla e riservata, la villa dispone di un accesso indipendente sia carrabile che pedonale, garantendo privacy e comodità. Circondata da un parco di circa 1500 mq.Al piano terra, un loggiato accogliente introduce all'ingresso principale, dove si apre un ampio salone e una zona living luminosa con cucina spaziosa. Il terrazzo affacciato sul giardino è ideale per cene all'aperto e momenti di relax. Al piano rialzato, due camere da letto con balcone e un bagno offrono comfort e funzionalità. Al piano primo altre due camere con balcone e accesso alla mansarda completano la zona notte.La proprietà vanta sette locali ben distribuiti. La casa offre riscaldamento a Metano per un comfort ottimale tutto ...

  • 330 mq
  • 4 Camere
  • 2 Bagni
Vedi dettagli scheda immobile
© Copyright 2025 · lb
  • Home
  • Immobili in affitto
  • immobili in vendita
  • Chi siamo
  • contatti
  • English
  • Italiano
Inserisci qui la tua ricerca
Gestisci Consenso
Per fornire le migliori esperienze, utilizziamo tecnologie come i cookie per memorizzare e/o accedere alle informazioni del dispositivo. Il consenso a queste tecnologie ci permetterà di elaborare dati come il comportamento di navigazione o ID unici su questo sito. Non acconsentire o ritirare il consenso può influire negativamente su alcune caratteristiche e funzioni.
Funzionale Sempre attivo
L'archiviazione tecnica o l'accesso sono strettamente necessari al fine legittimo di consentire l'uso di un servizio specifico esplicitamente richiesto dall'abbonato o dall'utente, o al solo scopo di effettuare la trasmissione di una comunicazione su una rete di comunicazione elettronica.
Preferenze
L'archiviazione tecnica o l'accesso sono necessari per lo scopo legittimo di memorizzare le preferenze che non sono richieste dall'abbonato o dall'utente.
Statistiche
L'archiviazione tecnica o l'accesso che viene utilizzato esclusivamente per scopi statistici. L'archiviazione tecnica o l'accesso che viene utilizzato esclusivamente per scopi statistici anonimi. Senza un mandato di comparizione, una conformità volontaria da parte del vostro Fornitore di Servizi Internet, o ulteriori registrazioni da parte di terzi, le informazioni memorizzate o recuperate per questo scopo da sole non possono di solito essere utilizzate per l'identificazione.
Marketing
L'archiviazione tecnica o l'accesso sono necessari per creare profili di utenti per inviare pubblicità, o per tracciare l'utente su un sito web o su diversi siti web per scopi di marketing simili.
Gestisci opzioni Gestisci servizi Gestisci {vendor_count} fornitori Per saperne di più su questi scopi
Visualizza le preferenze
{title} {title} {title}