Salta al contenuto
  • Home
  • Immobili in affitto
  • immobili in vendita
  • Chi siamo
  • contatti
  • English
  • Italiano
Menu Chiudi
Cerca nel sito web
CASENTINOINTUSCANY

Dove i tuoi sogni prendono casa.

+22 Foto

V-304-P VILLETTA INDIPENDENTE CON TERRENO

Pratovecchio Stia (Frazione Pratovecchio)
€ 185.000
Caratteristiche principali
Rif: V-304-P
Contratto: Vendita
Tipologia: Villa Singola
Zona: COLLINE
Camere: 3
Posti letto: 6
Bagni: 2
Locali: 5.0
Superficie: 166 mq
Posto auto: Posto auto
Livelli: 2
Descrizione

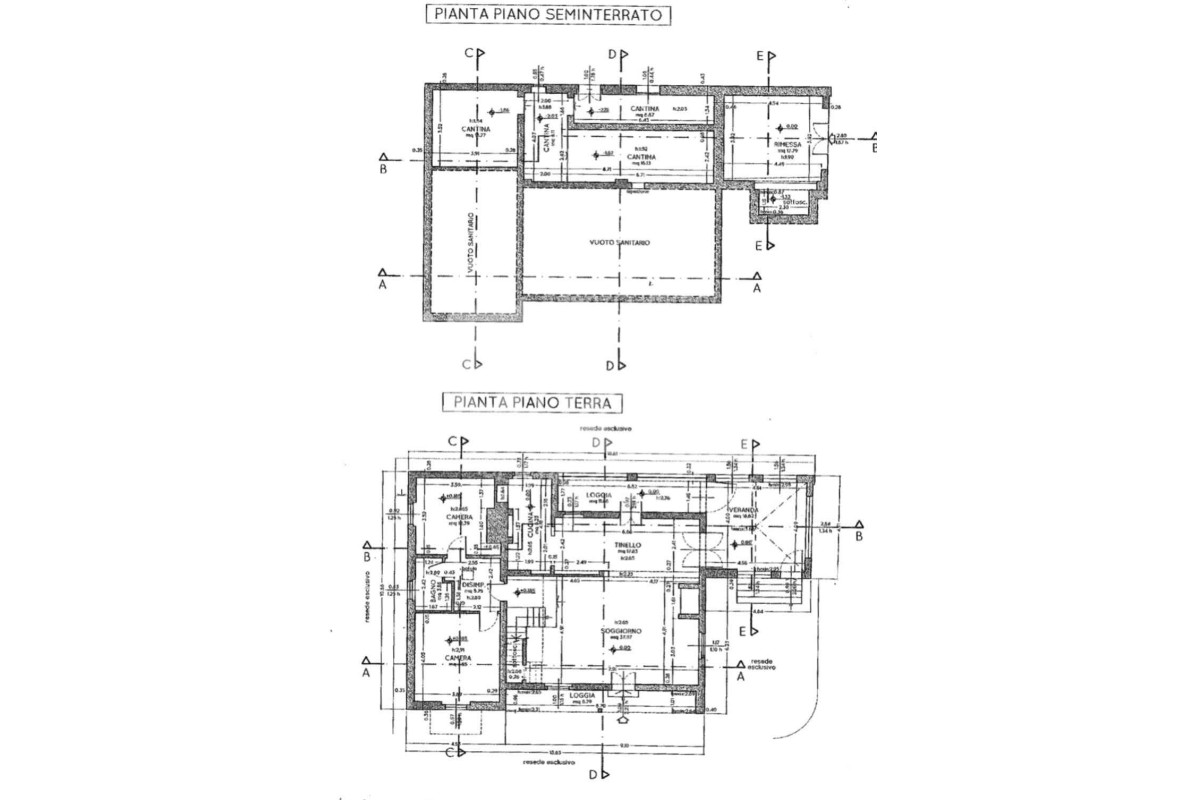
Proponiamo in vendita questa villetta indipendente situata in una zona panoramica e decentrata, perfetta per chi cerca tranquillità e bellezza naturale.  La posizione comoda permette di raggiungere facilmente Firenze e il Passo della Consuma.

L'immobile si sviluppa su un piano terra rialzato, con  luminoso soggiorno , cucina con tinello , due camere matrimoniali e un bagno. 

Al piano superiore si trova una mansarda di 35 mq con bagno e caminetto, un luogo ideale da mettere a disposizione di ospiti o da usare come studio privato.

La proprietà è corredata da una spaziosa veranda con affaccio panoramico ideale per godere di momenti di relax all'aperto, oltre a due terrazzi con loggiato. Il piano seminterrato è dotato di locali accessori, tra cui cantine e garage, perfetti per riporre attrezzature e veicoli.

 Con un ampio terreno di  35.000 m² la proprietà è servita da acqua proveniente da sorgente privata, garantendo una risorsa preziosa e sostenibile, un luogo ideale per gli amanti della natura . 

Efficienza energetica
In fase di rilascio
Stato: Da Rinfrescare
Riscaldamento: Autonomo
Tipo di riscaldamento: Radiatori
Alimentazione riscaldamento: Gasolio
Aria condizionata: Assente
Dettagli aggiuntivi
Cucina: Abitabile
Giardino: Privato
Ingresso: Indipendente
Arredamento: Non arredato
Lati liberi: Quattro
Esposizione: Esterna
Distanze
Centro: 8.0 km
Planimetrie
Foto 360
© Copyright 2025 · lb
  • Home
  • Immobili in affitto
  • immobili in vendita
  • Chi siamo
  • contatti
  • English
  • Italiano
Inserisci qui la tua ricerca
Gestisci Consenso
Per fornire le migliori esperienze, utilizziamo tecnologie come i cookie per memorizzare e/o accedere alle informazioni del dispositivo. Il consenso a queste tecnologie ci permetterà di elaborare dati come il comportamento di navigazione o ID unici su questo sito. Non acconsentire o ritirare il consenso può influire negativamente su alcune caratteristiche e funzioni.
Funzionale Sempre attivo
L'archiviazione tecnica o l'accesso sono strettamente necessari al fine legittimo di consentire l'uso di un servizio specifico esplicitamente richiesto dall'abbonato o dall'utente, o al solo scopo di effettuare la trasmissione di una comunicazione su una rete di comunicazione elettronica.
Preferenze
L'archiviazione tecnica o l'accesso sono necessari per lo scopo legittimo di memorizzare le preferenze che non sono richieste dall'abbonato o dall'utente.
Statistiche
L'archiviazione tecnica o l'accesso che viene utilizzato esclusivamente per scopi statistici. L'archiviazione tecnica o l'accesso che viene utilizzato esclusivamente per scopi statistici anonimi. Senza un mandato di comparizione, una conformità volontaria da parte del vostro Fornitore di Servizi Internet, o ulteriori registrazioni da parte di terzi, le informazioni memorizzate o recuperate per questo scopo da sole non possono di solito essere utilizzate per l'identificazione.
Marketing
L'archiviazione tecnica o l'accesso sono necessari per creare profili di utenti per inviare pubblicità, o per tracciare l'utente su un sito web o su diversi siti web per scopi di marketing simili.
Gestisci opzioni Gestisci servizi Gestisci {vendor_count} fornitori Per saperne di più su questi scopi
Visualizza le preferenze
{title} {title} {title}